
現地外観写真-限定1棟!是非一度ご覧ください^^ 現地写真2024.8.5撮影






















































--見学Point--
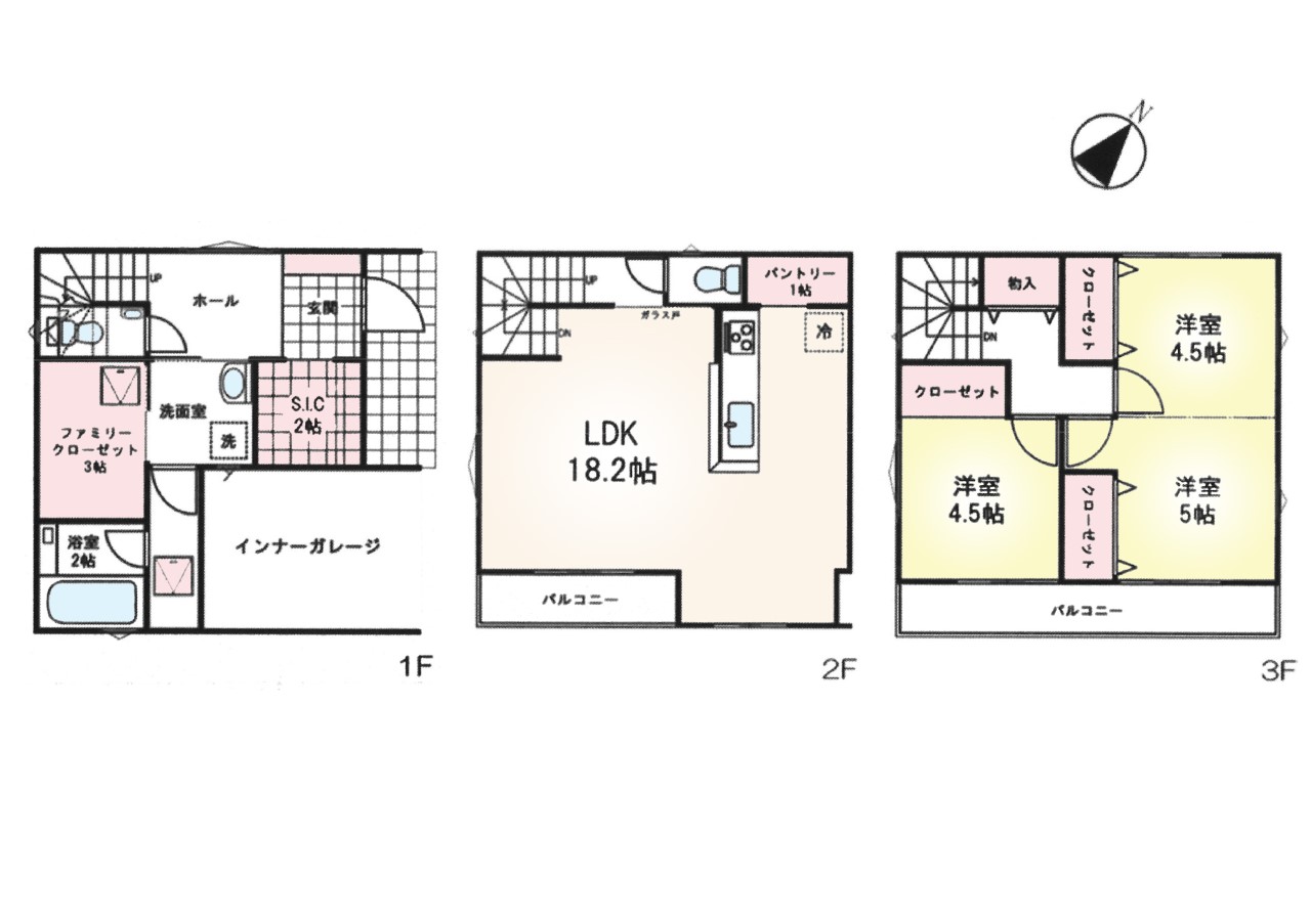
■全居室2面採光☆
■収納豊富な3LDK♪
SIC+パントリー収納+ファミリークローゼット
■お子様の成長に沿って間仕切り可能な
フレキシブルルーム☆(5帖+4.5帖)
■LDK広々18.2帖^^
2階部分につき、陽当り良好です。
■雨風から愛車を守れるビルトインガレージ!
■便利な設備が充実◎
・浴室暖房換気乾燥機
・食器洗浄乾燥機
・TVモニター付きインターホン 等
--Life Information--
■東武東上線「上福岡」駅まで徒歩7分♪
毎日の通勤・通学に便利です。
■徒歩圏内に生活利便施設多数◎
*…*…*…*…*…*
ご案内・詳細など資料のご請求はお気軽にどうぞ♪
※お電話の場合:TEL 0120-52-1777
※メールの場合:≪資料請求≫≪見学予約≫ボタンをクリック☆
●住宅ローン等の無料相談
ローン審査に不安がある方、まずはご相談下さい。
●無料送迎サービス
小さなお子様がいるご家族、遠方からお越しの方もぜひ。
※チャイルドシートもご用意しております。
| 物件名 | 「終了」新築未入居 川越市藤間「収納スペース豊富」 | ||
|---|---|---|---|
| 住所 | 川越市大字藤間 | ||
| 交通 | 東武東上線上福岡駅 徒歩7分 東武東上線新河岸駅 徒歩24分 川越線南古谷駅 徒歩+バス25分 上福岡駅入口から徒歩13分 |
||
| 価格 | 3,480万円(税込) | 販売棟数 | -- |
| 物件種別 | 戸建 | 建物構造 | 木造3階建 |
| 土地面積 | 75.18㎡ | 建物面積 | 109.09㎡ |
| 間取り | 3LDK | 土地権利 | 所有権 |
| 築年月 | 2023/12/01 | 現況 | 未入居 |
| 建築確認番号 | 第SJK-KX235411580号 | ||
| 接道 | 方向:北東 幅員:4m (公道) | 引渡時期 | 即 |
| 用途地域 | 第一種住居地域 | ||
| 建蔽率 | 60% | 容積率 | 160% |
| 駐車場 | 敷地内 屋内車庫 | 地目 | 宅地 |
| 設備 | システムキッチン/カウンタキッチン/対面キッチン/食器洗い機付き/パントリー(食器・食品の収納庫)/コンロ口数三口/バスあり/トイレあり/バス・トイレ別/ユニットバス/追い焚き/浴室乾燥機/ウォシュレット/オートバス付き/脱衣所/トイレ2ヶ所/シャワー/浴室1坪以上/浴室に窓/浴室暖房/バルコニー/バルコニー2面/3階建以上/玄関ホール/LDK18畳以上/間取り変更可能/採光2面/採光3面/全室2面採光/東南向き/室内洗濯機置き場/フローリング/全室フローリング/リビング階段/クローゼット/ウォークインクローゼット/収納/床下収納/下駄箱/全居室収納/洗面室収納/シューズインクローク/シャンプドレッサー付き/洗面所独立/フラット35Sに対応/年度内入居可/モニタ付きインターフォン/インターフォン/通風良好/陽当り良好/24時間換気システム/都市ガス/公営水道/下水/ビルトインガレージ/駐車場1台/整形地/市街地が近い/スーパーが近い(10分以内)/中学校徒歩10分以内 | ||
| 法令上の制限 | |||
| 備考 | 即日ご案内可能。インターネット上で掲載されている他の物件もご案内できます。ご希望がありましたら併せてお問合せください。ご見学の際はお迎えに上がりますので、お待ち合わせ場所等お気軽にご相談ください。 | ||
| 学区 | 川越市立高階南小学校1600m 川越市立寺尾中学校750m | 取引態様 | 売主 |
※地図は周辺エリアを表示しております。
※地図上に表示されている周辺環境情報に関しては最新の情報でない場合があり、また実際の所在地と位置が異なる場合がございます。

川越市立高階南小学校
1600m(徒歩20分)

川越市立寺尾中学校
750m(徒歩10分)

ファミリーマート川越寺尾店
550m(徒歩7分)

ビッグエー上福岡一丁目店
500m(徒歩7分)

元気クリニック
400m(徒歩5分)

東武東上線「上福岡」駅
560m(徒歩7分)

東武東上線「新河岸」駅
1900m(徒歩24分)

JR川越線「南古谷」駅
3500m(徒歩44分)